Lakáskínálat :


 
 


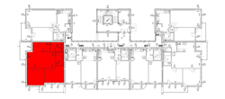
" B " ÉPÜLET - III. EMELET 2.

 
 

 


A képre kattintva megnyithatja teljes méretében

Lakás alapterület:
 
69,28 nm
 
+Terasz :
 
16,55 nm
 
Nappali :
 
22,22 nm
 
Szoba :
 
14,03 nm
 
Szoba :
14,25 nm
 
Konyha :
 
8,09 nm
 
Előszoba :
 
4,42 nm
 
Fürdőszoba :
 
5,15 nm
 
WC :
1,12 nm
 

 
 
 
Copyright © TARA Kft., 2005